Progettazione architettonica
Residenza sociosanitaria a Varese
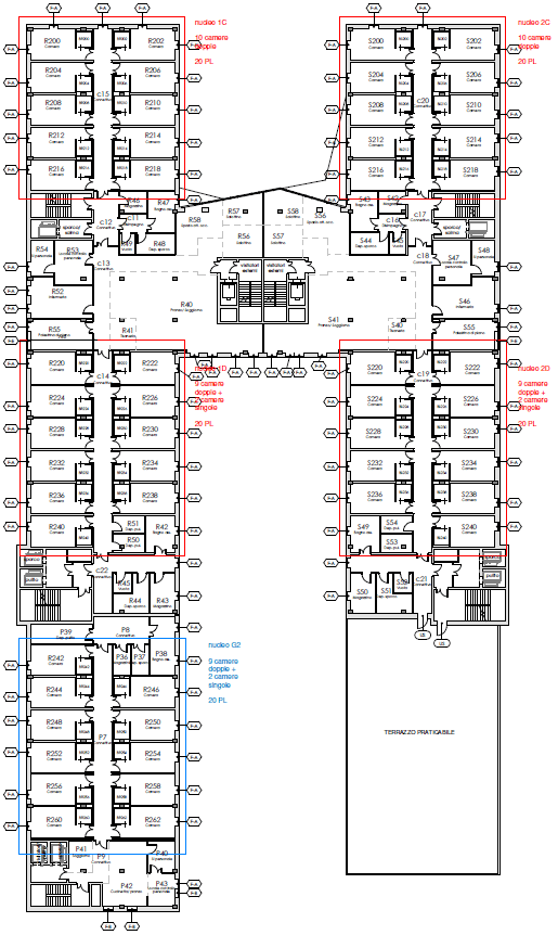
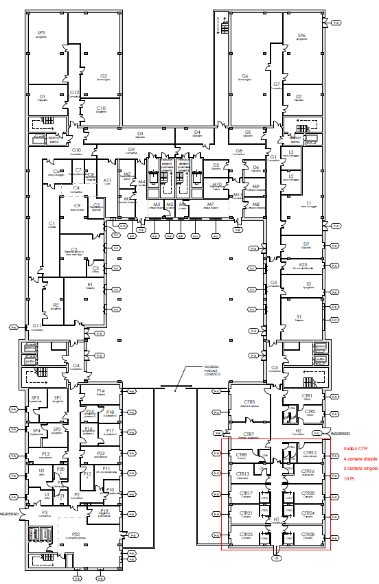
Progetto di fattibilità tecnico-economica per la realizzazione di una nuova struttura sanitaria e sociosanitaria a Varese, in area ex industriale (ex Tipografia Moria, Via Guicciardini 66). L’intervento, sviluppato secondo metodologia BIM, ha previsto la completa riconversione dell’area attraverso la demolizione dei volumi esistenti e la progettazione di un nuovo edificio destinato a ospitare: 240 posti letto di Residenza Sanitaria Assistenziale (RSA) - 40 posti letto per Assistenza Psichiatrica - 10 posti letto per Centro Terapeutico Riabilitativo (CTR) Minori.
Business Challenge
Rigenerazione urbana di un’area dismessa con finalità sociosanitarie
Integrazione tra funzioni sanitarie, psichiatriche e riabilitative in un unico complesso
Progettazione orientata alla qualità della vita degli utenti e alla sicurezza operativa
Ottimizzazione dei flussi e dei percorsi interni secondo criteri di efficienza e separazione funzionale
Adozione di metodologia BIM per il coordinamento interdisciplinare e la gestione del ciclo di vita dell’opera
Rispetto dei vincoli normativi e del budget disponibile
Milestones
1. Analisi urbanistica dell’area, analisi dei vincoli, piano di demolizione dei volumi esistenti.
2. Definizione del fabbisogno clinico-gestionale e delle dotazioni funzionali.
3. Redazione del Programma Funzionale e del layout distributivo.
4. Progettazione architettonica preliminare secondo metodologia BIM.
5. Sviluppo del progetto di fattibilità tecnico-economica.
6. Coordinamento delle progettazione delle aree esterne e delle infrastrutture di supporto.
7. Coordinamento interdisciplinare
Conclusioni
La progettazione eseguita è risultata presupposto per le analisi di sostenibilità dell’intervento, per la definizione degli accordi tra i soggetti coinvolti nell’operazione (proprietà, sviluppatore, futuro gestore e fondo immobiliare), per le pratiche di cambio di destinazione d’uso del lotto, per la richiesta dei titoli a costruire nonché come primo tassello di una struttura che è entrata ufficialmente in funzione nel corso del 2025.





